※必ず採寸方法をご確認いただき、製品寸法をご指定ください。
» 縦型ブラインド採寸方法はこちら
腰高窓から掃き出し窓まで幅広く対応。一般住宅などに最適なタイプです。

操作方法(コード&バトン式)
ルーバーの開閉はドライブコードで、角度調整は操作バトンで行います。幅の広い窓の開閉にはドライブコードが便利です。

ウエイト仕様
ノーマルタイプのバランスウエイトは巻き込み式のみとなります。また、ボトムコード付きが標準仕様となります。
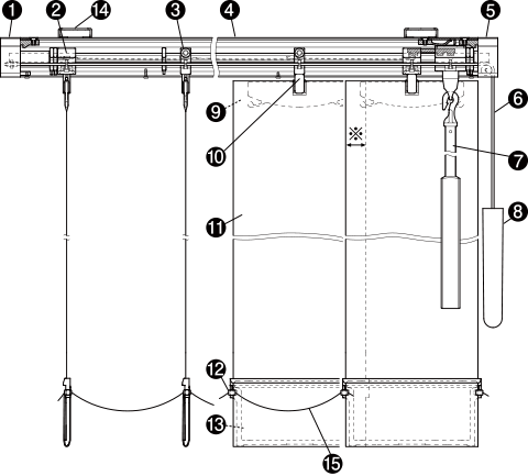
| ① | Uターン側サイドカバー |
|---|---|
| ② | トップランナー |
| ③ | ランナー |
| ④ | ヘッドレール |
| ⑤ | 操作側サイドカバー |
| ⑥ | ドライブコード |
| ⑦ | 操作バトン |
| ⑧ | テンションウエイト |
| ⑨ | ハンガー |
| ⑩ | ランナーフック |
| ⑪ | ルーバー |
| ⑫ | ウエイトカバー |
| ⑬ | バランスウエイト |
| ⑭ | ブラケット |
| ⑮ | ボトムコード |
※全閉時のルーバーの重なり寸法:10mm
※製品高さは、天井付けブラケットが含まれた寸法となります。
※( )寸法:出長は2段階の調整ができます。
【注意】取付高さ(h)のご指定がない場合、製品高さ(H)によって操作バトン・コードの長さが決まります。
| 製品高さ(H) または取付高さ(h) | 操作コード長さ |
|---|---|
| 50〜100cm | 製品高さ(H) または取付高さ(h)と同じ |
| 〜160cm | (H)-20cmまたは(h)-20cm |
| 〜200cm | (H)-40cmまたは(h)-40cm |
| 〜600cm | (H)-60cmまたは(h)-60cm |
| 製品高さ(H)または 取付高さ(h) | 操作バトン長さ |
|---|---|
| 50〜160cm | 30cm |
| 〜200cm | 60cm |
| 〜230cm | 90cm |
| 〜260cm | 120cm |
| 〜290cm | 150cm |
| 〜320cm | 180cm |
| 〜350cm | 210cm |
| 〜380cm | 240cm |
| 〜400cm | 260cm |
| 〜420cm | 290cm |
| 〜460cm | 320cm |
| 〜490cm | 350cm |
| 〜520cm | 380cm |
| 〜550cm | 410cm |
| 〜580cm | 440cm |
| 〜600cm | 470cm |
※取付高さまたは製品高さが401cm以上の場合、操作バトンはジョイント仕様(1ヶ所)になります。
左右どちらか片側にドライブコードと操作バトンが1本付き、ルーバーは片側に納まります。

片開き(右寄せ)/操作位置:右

片開き(左寄せ)/操作位置:左

片開き(左寄せ)/操作位置:右(※1)

片開き(右寄せ)/操作位置:左(※1)
●両端部の隙間寸法

※全閉時、操作側の端のルーバーは若干角度がつきます。
●連窓片開き時の重なり寸法

※操作側と寄せ側が同じ場合に連窓ルーバー重なり指示が必要です。
左右どちらか片側にドライブコードと操作バトンが1本付き、ルーバーは左右両側に2分割して納まります。

両開き/操作位置:左

両開き/操作位置:右
操作バトンを回転させて調整してください。
※ルーバーの角度が不揃いの場合、いったん全ルーバーを全閉状態にした後に再度操作バトンを回転させると正常な位置に戻ります。
※ドライブコードはゆっくりと引いてください。ドライブコードを強い力で引くと、ルーバーが勢いよく動くため、ルーバーにバラつきが生じ、キレイにたたみ込めなくなります。また、操作バトンがスライドする時には揺れが発生し、窓ガラスや壁を傷つける場合がありますのでご注意ください。
※製品取付高さ301cm以上ではバトン操作によるルーバーの開閉ができません
【ご注意】
※故障の原因になりますので、ルーバーの開閉操作は必ずルーバーがヘッドレールに対して直角の状態で行ってください。


日差しの入る側の製品幅が長くなるようにしてください。
ブラケットの取付け位置はヘッドレールの端部から4〜6cm内側で、樹脂部品を避けて取付けてください。ブラケットを3個以上使用する場合は、等間隔になるように取付けてください。
付属の取付けネジでブラケットを取付けてください。
(ブラケット1個に対して取付けネジ1本必要)

(ブラケット1個に対して取付けネジ3本必要)

※正面付けの場合は、天井付けブラケットと正面付けL金具を組み合わせてご使用ください。天井付けブラケットを取り付ける穴は2つあり、使用する穴を変えることで施工時の出幅調整が可能です。
1.ヘッドレールをブラケットの仮止めフックに引っ掛けてください。
2.本体を奥にカチッと押し込んでください。
※ヘッドレールを取付け後、確実にヘッドレールがブラケットに固定されていることをご確認ください。


1.ブラケットの解除ボタンを押しながらヘッドレールを手前に引いてください。
2.本体を仮止めフックから外してください。
※ブラケットからヘッドレールを取外す際は、必ず手で支えながら作業してください。


1.ドライブコードを下へ引き、ランナーフックを片側に寄せてください。両開きの場合は両側に寄せてください。
2.操作バトンを回してランナーフックをヘッドレールと直角の状態にしてください。
※ランナーフックが直角の状態でルーバーの取付けを行わないとルーバーが正常に回転しない場合があります。
3.ルーバーの表裏を一定方向に揃え、ハンガー部をランナーフックに下から差し込んでください。
1.ハンガー部をやや傾けてください。
2.真下に引いてルーバーを取外してください。
ヘッドレール側のリング部に、操作バトンのフックを引っ掛けてください。
※取付け高さ401cm以上では、操作バトンはジョイント仕様となります。グリップの付いていないバトンをヘッドレール側へ取付けた後、グリップの付いたバトンを引っ掛けてジョイントしてください。
コードクリップは、お子様がドライブコードを首や体に巻きつけて、思わぬ事故を招くことを防止するための部品です。
コードクリップをドライブコードに取付け、お子様の手が届かない位置でドライブコードを束ねて、留めてください。
ご指定いただいた製品仕様により、ブラケット及び取付けネジの付属内容が異なります。
天井付けの場合は天井付けブラケットが付属され、正面付けの場合は正面付けブラケットセット(天井付けブラケットと正面付けL金具+付属ネジ)が付属されます。

お問い合わせはこちら
商品へのお問い合わせはこちらから。
探している商品などございましたらお気軽にお問い合わせください。
法人会員登録はお済みですか?
松装が卸・仕入れ先として強力サポート!
法人会員にご登録いただくと、会員価格でさらにお得に。大量注文・継続取引には、特別なサービスもご用意しております。お見積りは会員登録完了後、見積りフォームよりご連絡ください。